Omakotitalo, Sammonkatu 25, Savonlinna, Miekkoniemi, 3mh+k+harrasteh+kph+2wc+s+p+at, 140,00 m², 700,00 €/kk

Iso kahteen tasoon rakennettu omakotitalo Savonlinnan itäpuolen palveluiden läheisyydessä ja kohtuullisen matkan päässä Savonlinnan keskustasta!

Talon lämmitysmuotona nykyaikainen ilma-vesilämpöpumppu, jonka lisäksi yläkerran pesuhuoneissa sähköinen lattialämmitys.
Talossa on lisäksi asennettu normaali ilmalämpöpumppu, jota on käytetty pääasiassa viilennykseen.

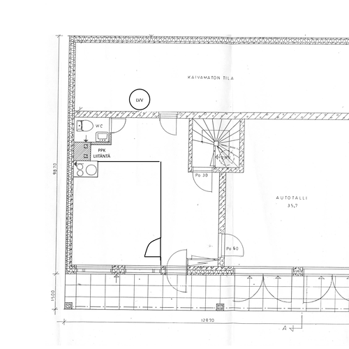
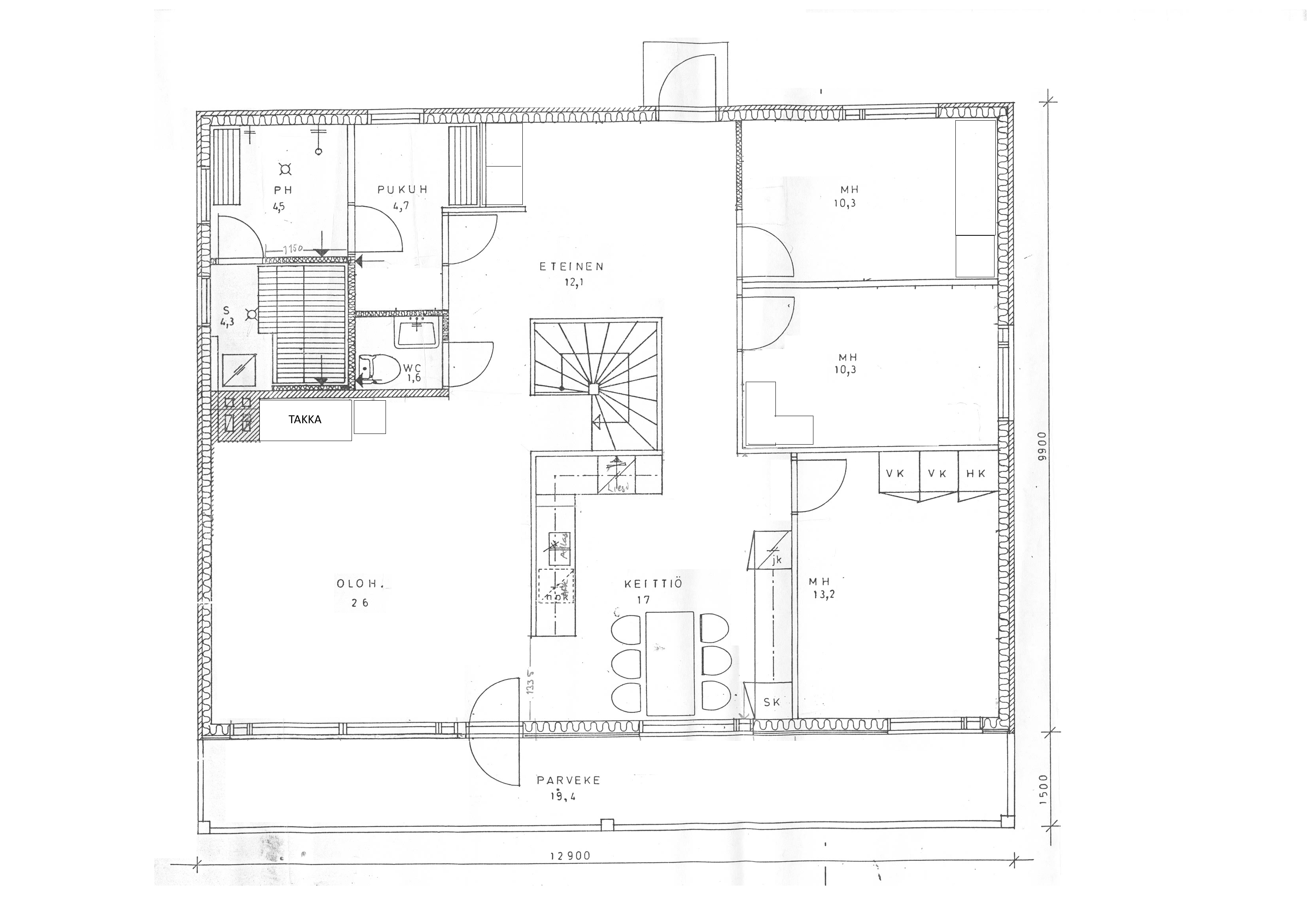
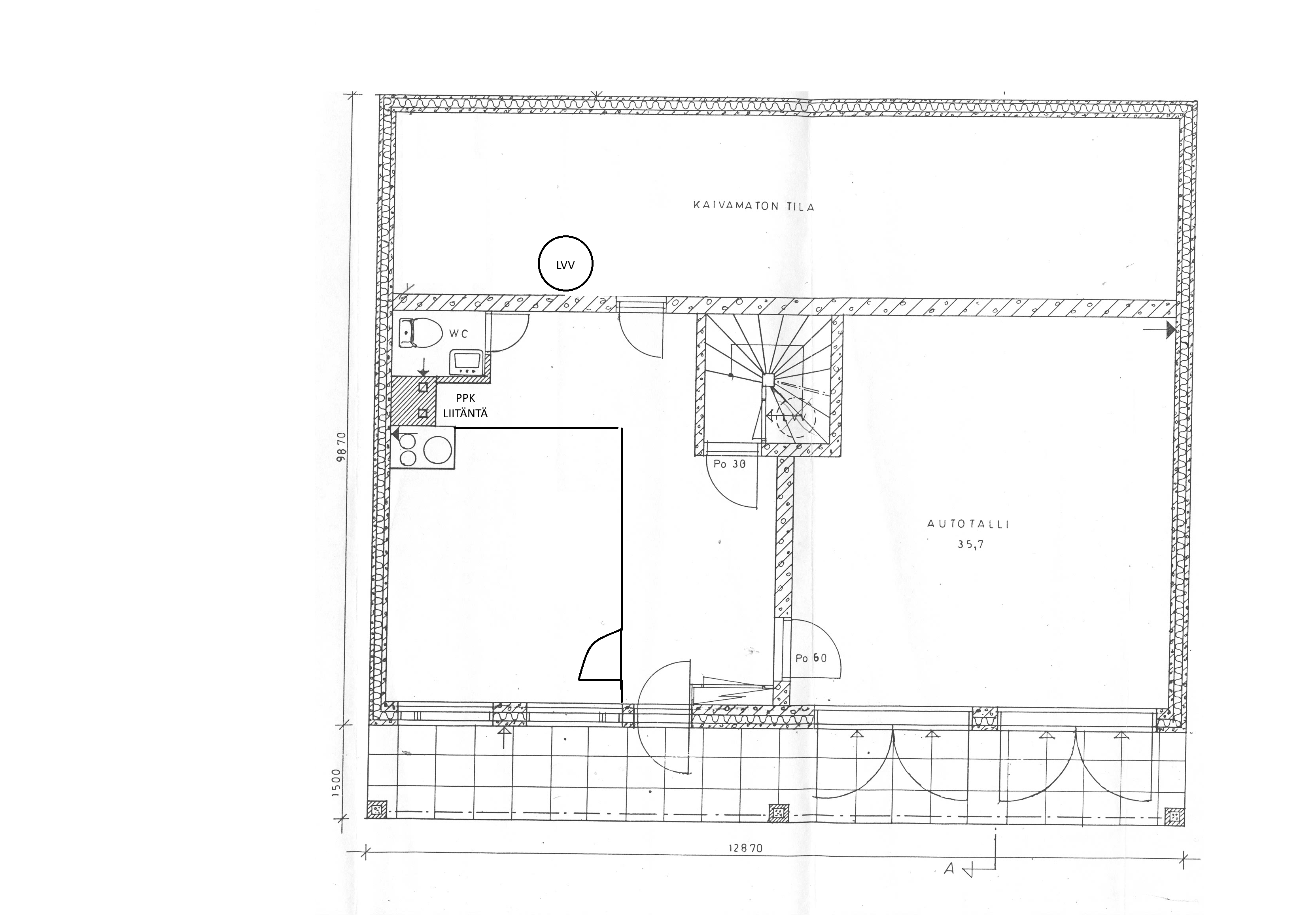
Talon alakerrassa sijaitsee yksi harrastehuone, erillinen wc ja iso kellaritila. Yläkerrassa sijaitsevat olohuone, keittiö, kolme makuuhuonetta, pukuhuone, pesuhuone, sauna sekä erillinen wc. Yläkerran olohuoneesta lisäksi käynti aurinkoiselle parvekkeelle.

Talon sisäpintoja on remontoitu vuosien aikana ja mm. pesuhuone on uusittu nykypäivän mukaiseksi.

Vuokravakuus 1 kk:n vuokra. Vuokralainen tekee oman sähkösopimuksen. Vesi peritään kulutuksen mukaan. Kotivakuutus vaaditaan ja luottotiedot tarkistetaan. Ei lemmikkejä. Yhteydenotot pääasiassa viestilomakkeen kautta lyhyen kertomuksen kera vuokralaisehdokkaasta. Sovitaan sitten mahdollisesta näytöstä! Palvelemme vuokra-asioissa myös puhelimitse arkisin klo 9-16.

Kohdetta välittää

Lkv Hannu Naukkarinen OyY-tunnus: 0946878-5Olavinkatu 31
57130 SAVONLINNA
antti.naukkarinen@hannunaukkarinen.fi+358 440 576 914

Esittely

Kohteen seuraavaa esittelyajankohtaa ei ole tiedossa
Kiinnostuitko kohteesta? Ota yhteyttä!
Etunimi *
Sukunimi *
Puhelin *
Sähköposti *

Perustiedot

64831846
64831846
Savonlinna, Miekkoniemi
Sammonkatu 25
57200 Savonlinna
Omakotitalo
Ei
Vuokra
3mh+k+harrasteh+kph+2wc+s+p+at
5
140,00 m²
200,00 m²
1983
Ei

Hinta ja kustannukset

700,00 € / kk
Toistaiseksi voimassa oleva
700,00 €
Ei
Ei

Lisätiedot

Ulostyönnetty parveke
Asunnossa on sauna

Varusteet: sähkökiuas, LED-valaistus
Seinien pintamateriaali: paneeli, kivi
Lattian pintamateriaali: laatta
Ei
Takka

Olohuoneen nurkassa takka ja alakerran harrastehuoneessa pieni tulisija.
Hyvä
Sähkölämmitys, ilmavesilämpöpumppu
Lämmönjakotapa: ilmalämpöpumppu, sähköinen lattialämmitys, sähköpatterilämmitys

Vesi-ilmalämpöpumppu yläkerran lattialämmityksessä ja lämminvesivaraaja.Yläkerrassa myös ilmalämpöpumppu, tarvittu vain viilennykseen harvemmin. Sähköinen lattialämmitys yläkerran saunatiloissa ja vessassa.
Alakerrassa kaksi sähköpatteria.
Kunnan vesijohto
Kunnan
Koneellinen poisto

Asunnon tilat ja materiaalit

Pääasiallinen rakennusmateriaali: Puu

Puurakenteinen, tiiliverhoiltu.
Varusteet: jääkaappipakastin, astianpesukone, keraaminen liesi, liesituuletin hormilla
Lattian pintamateriaali: laminaatti
Seinien pintamateriaali: maalattu, tapetti
Lattian pintamateriaali: laminaatti
Makuuhuoneet yläkerrassa.
Seinien pintamateriaali: maalattu, tapetti
Lattian pintamateriaali: laminaatti

Makuuhuoneiden määrä: 3
Varusteet: kaksi suihkua, lattialämmitys
Seinien pintamateriaali: kaakeli, kivi
Lattian pintamateriaali: laatta
Yläkerran wc
Varusteet: seinä-WC, bidee, allaskaappi
Seinien pintamateriaali: maalattu
Lattian pintamateriaali: laatta

Alakerran wc
Varusteet: lattiaan asennettu WC, bidee, peilikaappi
Seinien pintamateriaali: maalattu
Lattian pintamateriaali: laatta
Katto: Harjakatto
Katon pintamateriaali: Peltikate

Asunnon tontti

740-11-87-5-L1
953,00 m²
Rinne