Peruskuntoinen hissitalon kolmio Savonlinnan ydinkeskustan kerrostalossa!
Asunto sijaitsee loistavalla paikalla kaikkien Olavinkadun palveluiden äärellä.
Taloyhtiössä on tehty paljon korjauksia ja viimeisimpänä on juuri valmistunut mittava LVI-saneeraus, josta arvioitu kustannus on huoneistolle noin 36.000 euroa.
Putkiremontin ed. mainittu kustannus sisältyy nyt huoneiston velattomaan hintapyyntöön 82.000 euroon.
Tarkka kustannus selviää kevään 2026 aikana, jolloin tarkentuu yhtiölainan osuus.
Huoneistossa on tehty pesuhuoneremonttia vuonna 2011.
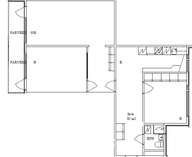
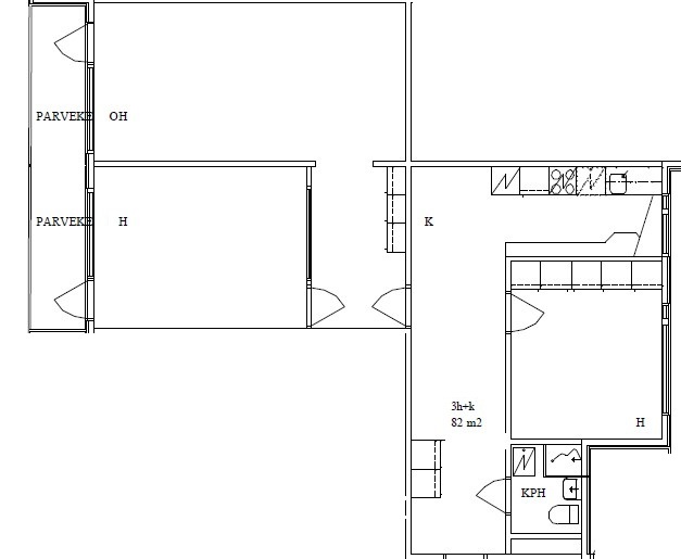
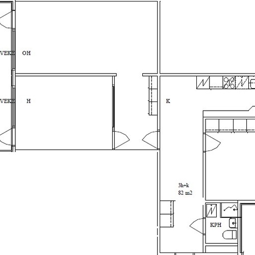
Läpitalon huoneisto, jossa parveke länteen
Asunto vapautuu tarvittaessa piakkoin uudelle omistajalle.
Yhteydenotot ja lisätiedot p. 0405190811/Naukkarinen
Kohdetta myy
Lkv Hannu Naukkarinen OyY-tunnus: 0946878-5Olavinkatu 31
57130 SAVONLINNAantti.naukkarinen@hannunaukkarinen.fi+358 440 576 914
57130 SAVONLINNAantti.naukkarinen@hannunaukkarinen.fi+358 440 576 914
Esittely
Kohteen seuraavaa esittelyajankohtaa ei ole tiedossa
Perustiedot
67372284
67372284
Savonlinna, Keskusta
Olavinkatu 43
57100 Savonlinna
Olavinkatu 43
57100 Savonlinna
Kerrostalo
Ei
Omistusasunto
3h+k+ph+p
82 m²
82 m²
2/5
1963
Hinta ja kustannukset
82 000 €
82 000 €
1 000 € / m²
Laskettu velattomasta myyntihinnasta.
Laskettu velattomasta myyntihinnasta.
459 € / kk
Hoitovastike 331,50 € / kk
Korjausvastike 127,50 € / kk
Hoitovastike 331,50 € / kk
Korjausvastike 127,50 € / kk
20 € / kk / hlö
Lisätiedot
Kyllä
Lasitettu
Ei
Ei
2011: Ammeen poisto ja lattian vesieristys sekä laatoitus
Kaukolämpö
Lämmönjakotapa: vesikiertoinen patterilämmitys
Lämmönjakotapa: vesikiertoinen patterilämmitys
Koneellinen poisto
Kaapeli-TV
Asunnon tilat ja materiaalit
Varusteet: jääkaappipakastin, sähköliesi, liesituuletin hormilla, astianpesukone
Lattian pintamateriaali: parketti
Lattian pintamateriaali: parketti
Seinien pintamateriaali: tapetti
Lattian pintamateriaali: parketti
Lattian pintamateriaali: parketti
Seinien pintamateriaali: tapetti
Lattian pintamateriaali: parketti
Makuuhuoneiden määrä: 2
Lattian pintamateriaali: parketti
Makuuhuoneiden määrä: 2
Varusteet: suihku, peilikaappi, allaskaappi, pesukoneliitäntä
Seinien pintamateriaali: kaakeli
Lattian pintamateriaali: laatta
Seinien pintamateriaali: kaakeli
Lattian pintamateriaali: laatta
Kellari tai kellarikomero, vintti tai vinttikomero
Katto: Harjakatto
Katon pintamateriaali: Peltikate
Katon pintamateriaali: Peltikate
Taloyhtiö
Asunto Oy Kuutinkulma
Kellarikomero, kuivaushuone, väestönsuoja, vinttikomero, talopesula, mankelihuone, urheiluvälinevarasto
Taloyhtiössä sauna
54
2026: Porraskäytävän remontti, pysty- ja vaakaviemäreiden sukitus, sähköjärjestelmän saneeraus, ullakon seinien korjauksia, ilmanvaihdon uusiminen ja nuohous, saunaosaston saneeraus, käyttövesiremontti
2023: Pysty- ja vaakaviemäreiden kuntotutkimus
2021: C-rapun pohjaviemärit uusittu, piharemontti tehty
2020: Huoneistoihin asennettu tuloilmanventtiili ja kaukolämmön vaihdin uusittu
2019: Uusittu autotallin ovi ja rappukäytäviin asennettu tunnistinvalot
2017: Uusittu yksi autotallin ovi, nostettu osa kellarikerroksen lämpö- ja vesijohdoista pintavedoksi
2016: Hissien peruskorjaus ja ilmanvaihdon nuohous
2014: Kolmen autotallin ovien korjaus, katon osakorjaus, joissa yläkerran kuivausparvekkeen seinän korjaus ja samalla kohdalla olevan katon osittainen uusiminen
2013: Parvekkeiden ja julkisivun minerit-levyjen maalaus
2012: Kylmä- ja lämminvesijohtojen pinnoitus, asennettu ovipuhelimet
2011: Possenkadun sivustan jalkakäytävä korjattu
2010: Loput pystyviemärilinjat pinnoitettu Dakki-menetelmällä, myrskyn repimä kattolape korjattu
2009: Viemärinjat 8,90 ja 10 pinnoitettu Dakki-menetelmällä, peltikaton maalaus
2005: Antenniverkoston digi-kunnostus
2002: Asuntojen lukkojen uudelleensarjoitus
2000: B-rapun pohjaviemäri uusittu
2023: Pysty- ja vaakaviemäreiden kuntotutkimus
2021: C-rapun pohjaviemärit uusittu, piharemontti tehty
2020: Huoneistoihin asennettu tuloilmanventtiili ja kaukolämmön vaihdin uusittu
2019: Uusittu autotallin ovi ja rappukäytäviin asennettu tunnistinvalot
2017: Uusittu yksi autotallin ovi, nostettu osa kellarikerroksen lämpö- ja vesijohdoista pintavedoksi
2016: Hissien peruskorjaus ja ilmanvaihdon nuohous
2014: Kolmen autotallin ovien korjaus, katon osakorjaus, joissa yläkerran kuivausparvekkeen seinän korjaus ja samalla kohdalla olevan katon osittainen uusiminen
2013: Parvekkeiden ja julkisivun minerit-levyjen maalaus
2012: Kylmä- ja lämminvesijohtojen pinnoitus, asennettu ovipuhelimet
2011: Possenkadun sivustan jalkakäytävä korjattu
2010: Loput pystyviemärilinjat pinnoitettu Dakki-menetelmällä, myrskyn repimä kattolape korjattu
2009: Viemärinjat 8,90 ja 10 pinnoitettu Dakki-menetelmällä, peltikaton maalaus
2005: Antenniverkoston digi-kunnostus
2002: Asuntojen lukkojen uudelleensarjoitus
2000: B-rapun pohjaviemäri uusittu
Kunnossapitotarve yhtiökokousta seuraavien viiden vuoden aikana:
- Ullakon seinän korjaus
- Jätehuollon järjestäminen 2026
- Ullakon seinän korjaus
- Jätehuollon järjestäminen 2026
Savonlinnan Isännöintikeskus Oy
Marko Seppänen
p. 0405966129
Marko Seppänen
p. 0405966129
Huoltoyhtiö
D2018
1 515 m²
Oma
Asemakaava
Muut lisätiedot
Taloyhtiö hallinnoi autopaikkoja. Autopaikat jonotusperusteella.
Autotallit ovat osakkeina.
Autotallit ovat osakkeina.
Läpitalon huoneisto, näkymät länteen Possenkadulle ja taloyhtiön sisäpihalle



















