Siistikuntoinen omakotitalo Pihlajaniemen asuinalueen palveluiden läheisyydessä!
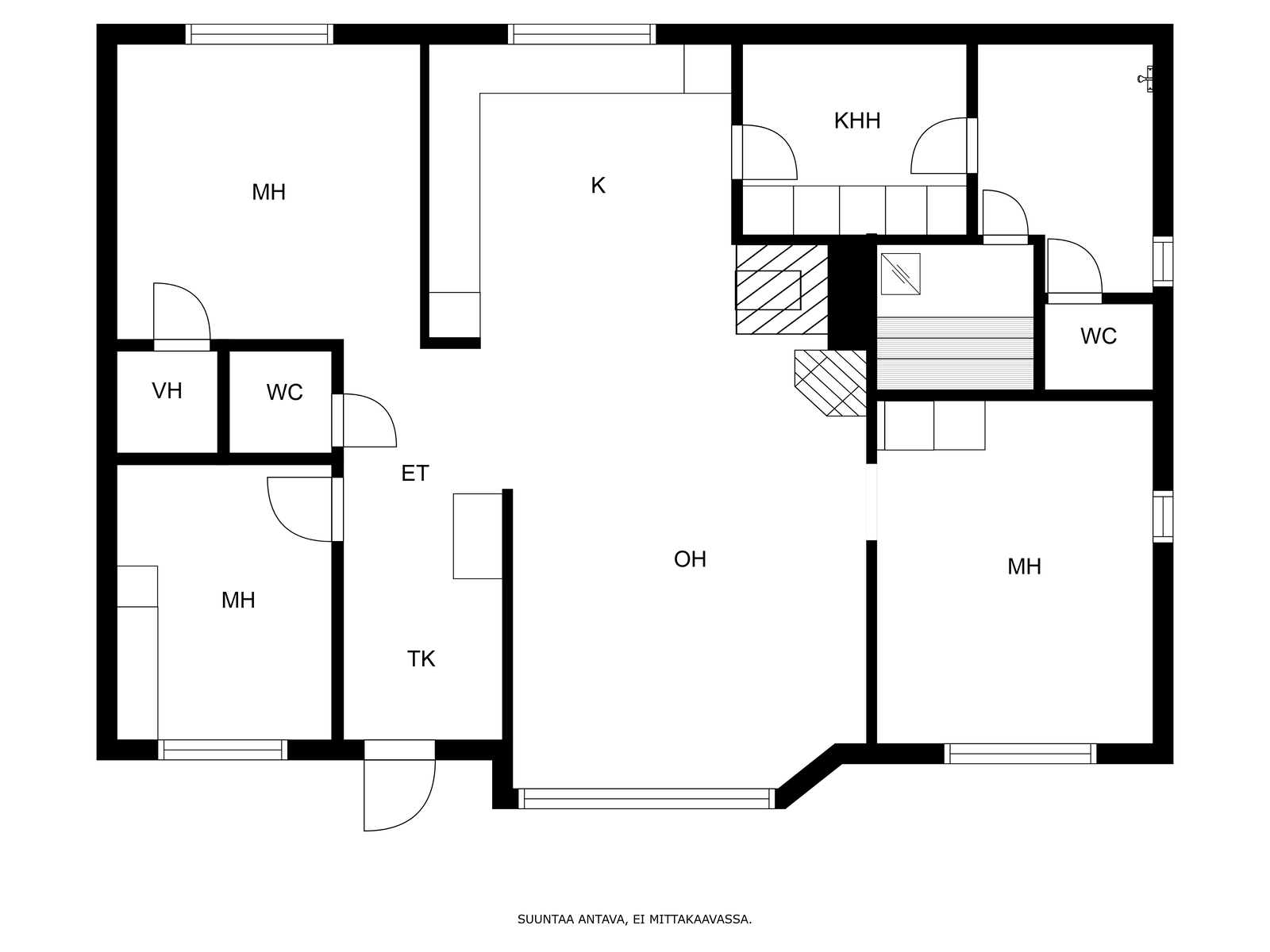
Tämä vuonna 1999 valmistunut yhteen tasoon rakennettu omakotitalo käsittää olohuoneen, keittiön, kolme makuuhuonetta, kodinhoitotilan, pesuhuoneen, saunan ja kaksi erillistä wc:tä.
Talon pinnat ovat siistissä kunnossa ja välttämättömiä korjaustarpeita ei ole tiedossa.
Viimeisen 10 vuoden aikana sisäpintoja on remontoitu, julkisivu maalattu, tehty piharemonttia sekä lukuisia muita pienempiä ehostuksia.
Lämmitysmuotona sähkö (lattialämmitys, patterit, ilmalämpöpumppu) sekä varaava takka ja leivinuuni.
Savonlinnan kaupungin suojaisa vuokratontti, joka on pääosin nurmikolla.
Tontilla on lisäksi maakellari sekä naapurin kanssa yhteisesti rakennettu talousrakennus, jossa on autokatos ja varastotilaa.
Mikäli olet etsinyt kompaktin kokoista omakotitaloa Pihlajaniemen alueelta niin tässä loistava vaihtoehto uudeksi kodiksi!
Yhteydenotot ja lisätiedot p. 040-5190811/Naukkarinen
Kohdetta myy
57130 SAVONLINNAantti.naukkarinen@hannunaukkarinen.fi+358 440 576 914
Esittely
Perustiedot
Kuusniementie 51
57600 Savonlinna
Hinta ja kustannukset
Laskettu velattomasta myyntihinnasta.
Lisätiedot
Seinien pintamateriaali: paneeli
Lattian pintamateriaali: laatta
ikkuna- ja ovilistat, mdf-katon asennus, led-kattovalaistus, uunien
maalaus/rappaus, lasipariovet
2014: Takapihan terassin rakentaminen
2015-2018: Pihan muutostöitä; laatoitukset, sokkelien vieruslaatoitukset, istutukset,
kuisti ja kaiteet, portit, sadevesijärjestelmät
2018: Talon ulkomaalaus
2019: Ulkoporealtaan asennus ja terassin muokkaus
2021: Tuulikaapin purku, laatoitus + lattialämmityksen asennus, peililiukuovet
2022: Talon/varaston ulkovalaistus ja uusi ulko-ovi vaihdettu (Pihla thermolämpöovi
+ Yale Doorman älylukko)
2022-2023: Sisäseinät uudelleen maalattu
Lämmönjakotapa: sähköpatterilämmitys, ilmalämpöpumppu
Asunnon tilat ja materiaalit
Seinien pintamateriaali: maalattu
Lattian pintamateriaali: laminaatti
Lattian pintamateriaali: laminaatti
Lattian pintamateriaali: laminaatti
Makuuhuoneiden määrä: 3
Seinien pintamateriaali: kaakeli
Lattian pintamateriaali: laatta
Seinien pintamateriaali: kaakeli
Lattian pintamateriaali: laatta
Seinien pintamateriaali: maalattu
Lattian pintamateriaali: laminaatti
Katon pintamateriaali: Peltikate
Asunnon tontti
Rakennustyypin kuvaus: Maakellari
Talousrakennus
Lisätietoa rakennuksesta: Rajalla yhteinen talousrakennus naapurin kanssa, josta myynnissä olevalle talolle kuuluu autokatos ja kaksi varastoa.



















