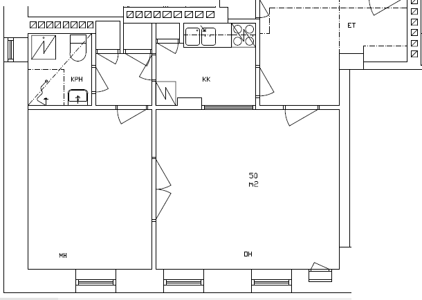
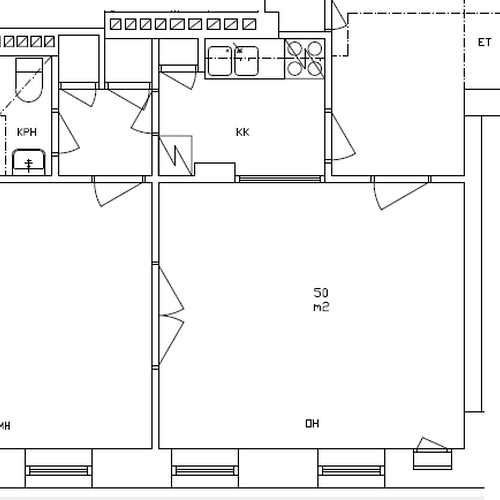
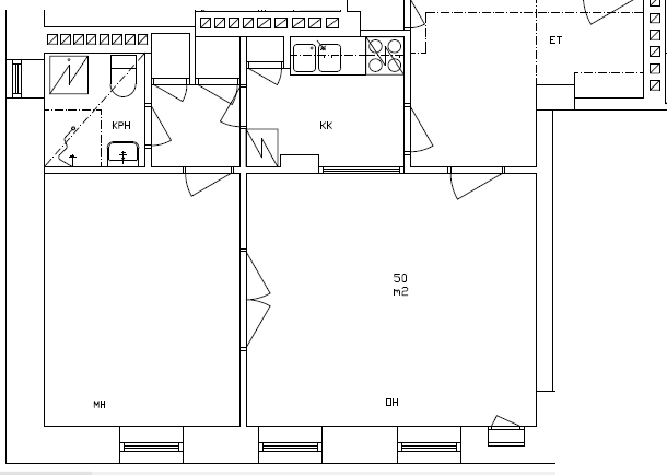
Arvostetussa vuonna 1947 Olavinkadun varteen rakennetussa Asunto Oy Torihovissa on nyt myytävänä 4. kerroksen kompakti kaksio.
Asunto sijaitsee talon päädyssä ja siitä avautuvat näkymät Olavinkadun suuntaan.
Huoneisto on peruskuntoinen ja pesuhuone on uusittu vuonna 2006 valmistuneen putkiremontin yhteydessä.
Taloyhtiössä on tehty asuntojen sähköremontti, LVI-saneeraus, hissien uusiminen, julkisivuremontti sekä lukuisia muita korjauksia.
Taloyhtiössä on edullinen hoitovastike, sillä taloyhtiö omistaa katutasossa olevat liikehuoneistot, joista kertyy yhtiölle vuosittain vuokratuloa.
Vesi ja sähkö peritään kulutuksen mukaan taloyhtiön toimesta, joten omaa sähkösopimusta ei tarvita.
Yhtiössä on voimassa lunastusoikeus, kysy lisätietoja välittäjältä
Asunto on vuokrattu!

Kohdetta myy
57130 SAVONLINNAantti.naukkarinen@hannunaukkarinen.fi+358 440 576 914
Esittely
Perustiedot
Olavinkatu 30
57130 Savonlinna
Hinta ja kustannukset
Laskettu velattomasta myyntihinnasta.
Hoitovastike 182,50 € / kk
Rahoitusvastike 50,00 € / kk
Lisätiedot
Lämmönjakotapa: vesikiertoinen patterilämmitys
Asunnon tilat ja materiaalit
Lattian pintamateriaali: muovi
Makuuhuoneiden määrä: 1
Seinien pintamateriaali: kaakeli
Lattian pintamateriaali: laatta
Katon pintamateriaali: Peltikate
Taloyhtiö
1990-1991: Ikkunaremontti
2000-2001: Asuntojen sähköremontti
2003: Hissien peruskorjaus
2006: LVI-peruskorjaus (vesi, viemärit, ilmanvaihdon koneellistaminen, kosteiden tilojen uusiminen, uudet sähkönousut ja ryhmäkeskukset)
2010: Uudet korvausilmaventtiilit
2011: Porrashuoneiden ovet ja ikkunat uusittu
2012: Julkisivun korjaaminen
2013: Vesikaton paikkakorjaukset
2014: Pääsisäänkäyntiovien uusiminen
2015-2016: Porrashuoneiden maalaaminen
2016: Lämmönsiirrin
2018: Katon pinnoitus/maalaus
2021: Julkisivuremontti
2023: Sisäpihan kunnostaminen
Sähkö- ja tietojärjestelmät: Taloyhtiön sähköpääkeskuksen uudistaminen sekä palovaroittimet uusitaan 2025
Juha Kinnunen
p. 010 231 0615
juha.kinnunen@kontuoy.fi
Kiinteistöpalvelu Tim Turunen Oy








