Tilava yksitasoinen omakotitalo Pihlajaniemen rauhallisella asuinalueella!
Vuonna 1987 valmistunut, yhdessä tasossa oleva omakotitalo tarjoaa kodikkaan ja toimivan asuinympäristön suositulla ja rauhallisella Pihlajaniemen alueella.
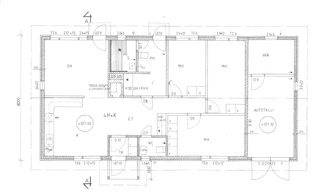
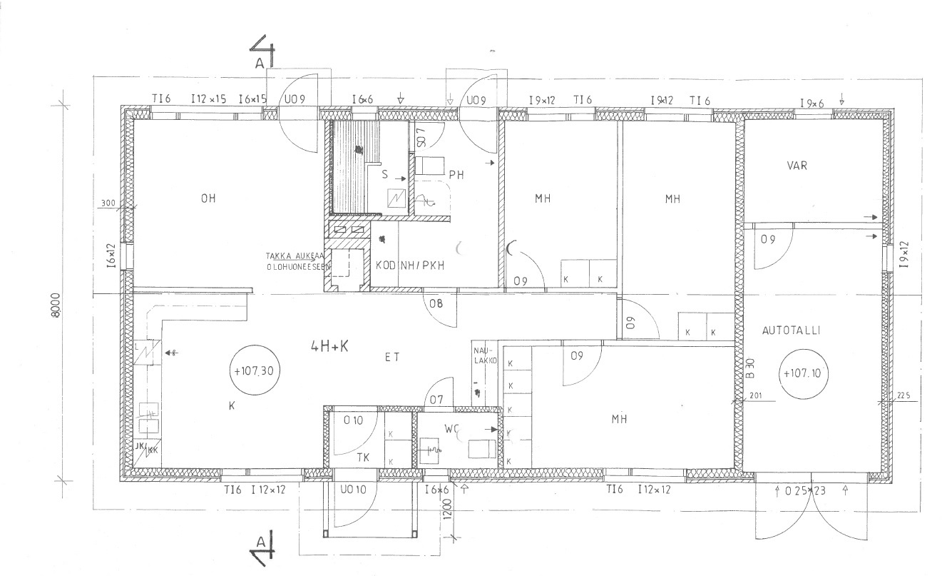
Talon pohjaratkaisu on käytännöllinen: avaran olohuoneen ja keittiön lisäksi kodissa on kolme makuuhuonetta, pesuhuone, sauna, erillinen wc sekä autotalli. Säilytystilaa löytyy runsaasti – autotallin yhteydessä on varasto, ja pihalta löytyy vielä erillinen varastorakennus. Lisäksi pihalla on viihtyisä grillikatos, joka kutsuu viettämään kesäiltoja ulkona.
Taloa on pidetty hyvin ja vuosien varrella siihen on tehty merkittäviä kunnostuksia. Sisäpinnat on uusittu kauttaaltaan v. 2008 ja myös ikkunat on vaihdettu. Lisäksi talossa on tehty lukuisia pienempiä korjauksia, jotka takaavat huolettomampaa asumista vielä pitkälle tulevaisuuteen.
Lämmitysmuotona toimii suora sähkö (lattialämmitys ja patterit) sekä ilmalämpöpumppu. Tunnelmaa ja lisälämpöä tuo varaava takka/leivinuuni.
Talossa on tehty asuntokaupan kuntotarkastus jokunen vuosi sitten.
Talo on tällä hetkellä vuokrattu toistaiseksi voimassa olevalla sopimuksella.
Tervetuloa tutustumaan – tässä kodissa yhdistyvät tilavuus, toimivuus ja rauhallinen sijainti! 
Kohdetta myy
57130 SAVONLINNAantti.naukkarinen@hannunaukkarinen.fi+358 440 576 914
Esittely
Perustiedot
Varsatie 3
57600 Savonlinna
Hinta ja kustannukset
Laskettu velattomasta myyntihinnasta.
Lisätiedot
Varusteet: sähkökiuas
Seinien pintamateriaali: paneeli
Lattian pintamateriaali: laatta
Lisäksi kastelukaivo, jossa sähköllä toimiva vesipumppu.
Iso perennapenkki kasvimaan vieressä ja talon ympäristössä pienempiä perennapenkkejä.
Pihassa myös grillikatos ja kylmä varastorakennus.
- Autotallin lattialämmitys v. 1999
- Suuri peruskorjaus v. 2008 sisäpintojen osalta, jolloin uusittu pääosin kaikki sisäpinnat (keittiö, pesutilat, lattiapinnat jne.)
- Uudet ikkunat- ja ovet v. 2015
- Ilmalämpöpumppu v. 2015
- Uudet autotallin ovet v. 2018
- Uudet rännit v. 2019
- Ekovilla yläpohjaan v. 2019
- Uudet asfaltit pihaan v. 2010
- Talon viemäreiden puhdistus v. 2021
- Katon kuntoraportti v. 2021
Lämmönjakotapa: sähköpatterilämmitys, ilmalämpöpumppu, sähköinen lattialämmitys
Asunnon tilat ja materiaalit
Puurakenteinen, tiiliverhoiltu.
Varusteet: jääkaappi, pakastin, astianpesukone, keraaminen liesi, liesituuletin hormilla
Lattian pintamateriaali: laatta
Lattian pintamateriaali: laatta, laminaatti
Lattian pintamateriaali: laminaatti
Makuuhuoneiden määrä: 3
Varusteet: suihku
Seinien pintamateriaali: kaakeli
Lattian pintamateriaali: laatta
Seinien pintamateriaali: kaakeli
Lattian pintamateriaali: laatta
Katon pintamateriaali: Peltikate
Asunnon tontti
490.06 €/v
Savonlinnan kaupunki
Muut lisätiedot
Savonlinnan keskustaan n. 5.5 km.



























