ISOLLA AURINKOISELLA NURMIKKOTONTILLA SIJAITSEVA OMAKOTITALO KELLARPELLOSSA!
Rauhallinen reilu 2000 m²:n kulmatontti, jossa on tilaa harrastaa
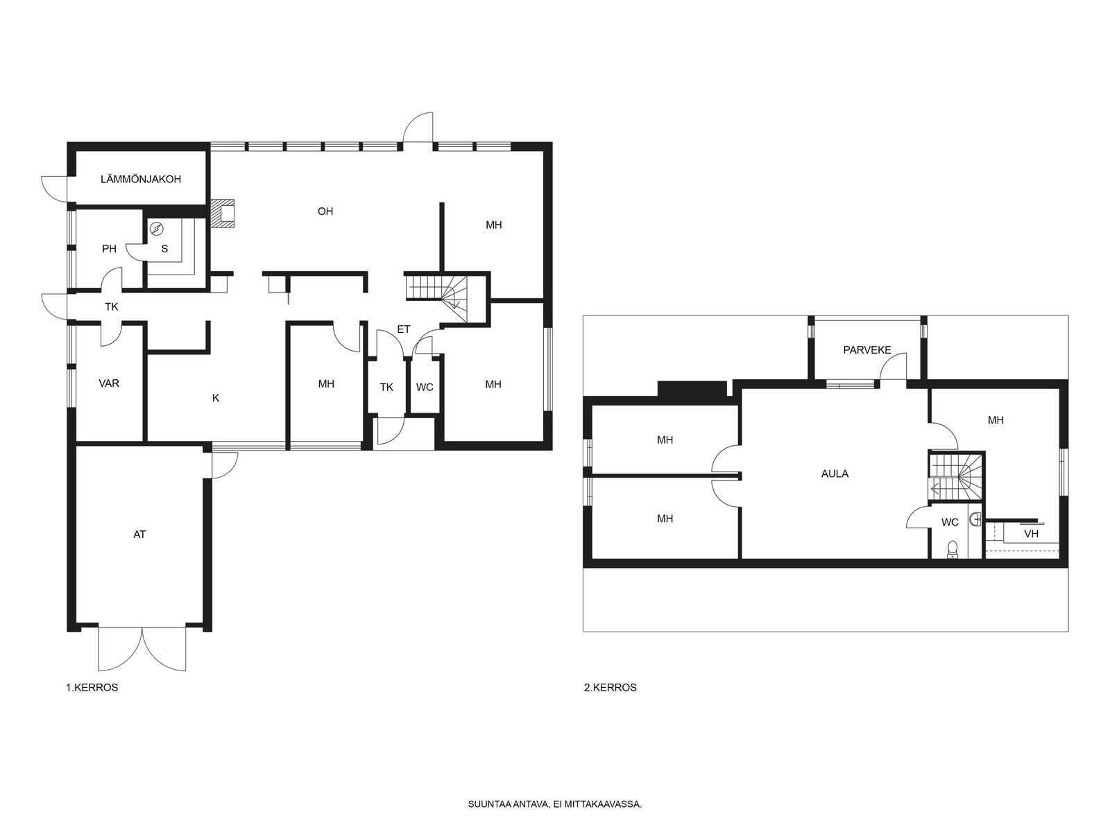
Talo on alkujaan valmistunut vuonna 1968 ja sen jälkeen vuonna 2009 on talon yläkerta rakennettu kokonaisuudessaan ja samassa yhteydessä uusittu harjakatto.
Alakerta käsittää keittiön, olohuoneen, pesuhuoneen, kodinhoitohuoneen, saunan sekä kaksi makuuhuonetta.
Yläkerrassa on iso aulatila, sekä kolme makuuhuonetta ja parveke
Molemmissa kerroksissa on myös erilliset wc:t.
Lämmitysmuotona talossa on vesikiertoinen lämmitys puulla tai sähköllä (lattialämmitys tai patterit)
Yläkerrassa on vesikiertoiset patterit ja ilmalämpöpumppu.
Vuosien varrella on uusittu mm. käyttövesi- ja lämmitysverkoston putket kokonaan v. 2013-2014 sekä tehty samaan aikaan pesuhuone ja saunaremontti.
Näiden lisäksi pintoja on päivitetty säännöllisesti ja viimeisimpänä uusittu alakerran wc vuonna 2025
Tontilla on lisäksi vuonna 2006 valmistunut lautarakenteinen kahden auton katos ja puuvarasto ja tämän lisäksi asuintalon yhteydessä on autotalli.
Vesi tulee omasta kaivosta ja viemäröinnin suhteen kiinteistö on liitetty kaupungin viemäriverkostoon.
Tarvittaessa uuden omistajan on mahdollista liittyä kunnan vesijohtoverkostoonkin.
Näitä isompia taloja on harvemmin tarjolla!
Mikäli olet etsinyt taloa suositulta alueelta läheltä koulua ja päiväkotia niin tässä varteenotettava vaihtoehto!
Yksityisesittelyt ja lisätiedot p. 0405190811/Naukkarinen
Kohdetta myy
57130 SAVONLINNAantti.naukkarinen@hannunaukkarinen.fi+358 440 576 914
Esittely
Perustiedot
57710 Savonlinna
Hinta ja kustannukset
Laskettu velattomasta myyntihinnasta.
Lisätiedot
Sauna uusittu v. 2013-2014.
Kiuas on vuodelta 2003.
Varusteet: LED-valaistus, heti valmis -sähkökiuas
Seinien pintamateriaali: paneeli
Lattian pintamateriaali: laatta
Puolivaraava takka.
Lämmönjakotapa: vesikiertoinen patterilämmitys, vesikiertoinen lattialämmitys
Vesikiertoinen puu/sähkö (lattialämmitys tai patterit).
Käyttövesi- ja lämmitysverkoston putket uusittu kokonaan v. 2013-2014.
Asunnon tilat ja materiaalit
Alakerta on tiilirakenteinen ja yläkerta puurakenteinen.
Lattian pintamateriaali: laatta
Lattian pintamateriaali: laatta
Lattian pintamateriaali: laminaatti
Makuuhuone 2: Seinien pintamateriaali: maalattu, tapetti
Lattian pintamateriaali: laminaatti
Makuuhuone 3: Seinien pintamateriaali: maalattu
Lattian pintamateriaali: laatta
Makuuhuone 4: Seinien pintamateriaali: maalattu, tapetti
Lattian pintamateriaali: laminaatti
Makuuhuone 5: Seinien pintamateriaali: maalattu
Lattian pintamateriaali: laminaatti
Makuuhuone 6: Seinien pintamateriaali: maalattu, tapetti
Lattian pintamateriaali: laminaatti
Makuuhuoneiden määrä: 6
Varusteet: kaksi suihkua
Seinien pintamateriaali: kaakeli
Lattian pintamateriaali: laatta
Seinien pintamateriaali: paneeli
Lattian pintamateriaali: laatta
WC-tila 2: Varusteet: seinä-WC, allaskaappi
Seinien pintamateriaali: kaakeli
Lattian pintamateriaali: laatta
Seinien pintamateriaali: maalattu
Lattian pintamateriaali: laatta
Katon pintamateriaali: Huopakate
Katto rakennettu uudelleen v. 2009.
Asunnon tontti
Kahdesta kiinteistöstä koostuva tontti.
Kahden auton lautarakenteinen autokatos, joka on rakennettu vuonna 2006. Rakennuksen yhteydessä puuvarasto. Pinta-ala n. 63 m².


























