Peruskuntoinen yksiö Kangasvuokontiellä.
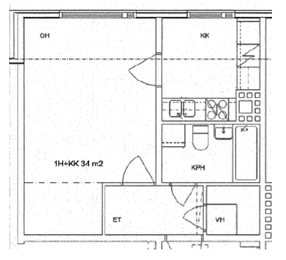
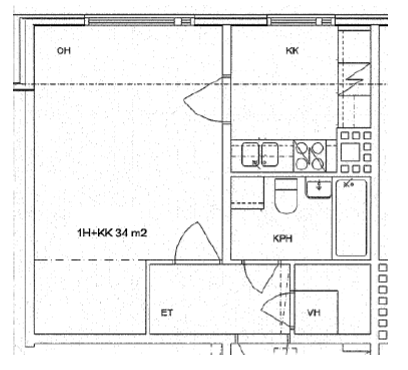
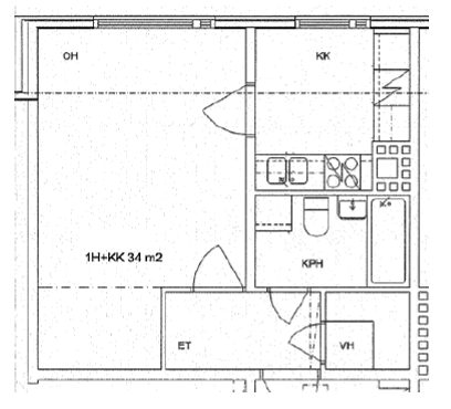
Asunto sijaitsee taloyhtiön kolmannessa kerroksessa ja käsittää olohuoneen, alkovin, keittiön, kylpyhuoneen ja vaatehuoneen. Asunto on täysin peruskuntoinen kylpyhuonetta lukuun ottamatta.
Taloyhtiössä on tehty mittavia saneerauksia kuten käyttövesiputket, ikkunat ja parvekeovet sekä katto. Viiden vuoden kunnossapitotarveselvityksestä ilmenee, että suunnitteilla on asfalttipintojen uusiminen sekä varautuminen kaukolämpölaitteiston uusimiseen.
Tässä asunto esimerkiksi vuokrakäyttöön hyvällä tuotolla tai vaikkapa omaksi asunnoksi.
Asunto on heti vapaa.

Kohdetta myy
Lkv Hannu Naukkarinen OyY-tunnus: 0946878-5Olavinkatu 31
57130 SAVONLINNAantti.naukkarinen@hannunaukkarinen.fi+358 440 576 914
57130 SAVONLINNAantti.naukkarinen@hannunaukkarinen.fi+358 440 576 914
Esittely
Kohteen seuraavaa esittelyajankohtaa ei ole tiedossa
Perustiedot
32025419
32025419
Savonlinna, Haka-alue
Kangasvuokontie 22
57220 Savonlinna
Kangasvuokontie 22
57220 Savonlinna
Kerrostalo
Ei
Omistusasunto
1h+kk+ph
1
34,00 m²
34,00 m²
Yhtiöjärjestyksen mukainen, Isännöitsijäntodistuksen mukainen
2/3
1966
Hinta ja kustannukset
12 000,00 €
12 000,00 €
352,94 € / m²
Laskettu velattomasta myyntihinnasta.
Laskettu velattomasta myyntihinnasta.
190,32 € / kk
Hoitovastike 190,32 € / kk
Hoitovastike 190,32 € / kk
Autopaikkamaksu: 9 €/kk
Saunamaksu: 14 €/kk
Saunamaksu: 14 €/kk
Lisätiedot
Ei
Ei
Ei
Ei
Tyydyttävä
Kaukolämpö
Lämmönjakotapa: vesikiertoinen patterilämmitys
Lämmönjakotapa: vesikiertoinen patterilämmitys
Koneellinen poisto
Kaapeli-TV
Asunnon tilat ja materiaalit
Pääasiallinen rakennusmateriaali: Betoni
Varusteet: jenkkikaappi, sähköliesi
Seinien pintamateriaali: maalattu
Lattian pintamateriaali: muovi
Seinien pintamateriaali: maalattu
Lattian pintamateriaali: muovi
Seinien pintamateriaali: maalattu
Lattian pintamateriaali: muovi
Lattian pintamateriaali: muovi
Varusteet: suihku, pesukoneliitäntä, peilikaappi
Seinien pintamateriaali: kaakeli
Lattian pintamateriaali: laatta
Seinien pintamateriaali: kaakeli
Lattian pintamateriaali: laatta
Kellari tai kellarikomero
Vaatehuone: Asunnossa on vaatehuone.
Taloyhtiö
Asunto-osakeyhtiö Mertala
Kellarikomero, talopesula, urheiluvälinevarasto
Taloyhtiössä sauna
27
2024: Etupiha-alueen hulevesien ohjauksen parannukset
2023: Julkisivumaalaus
2022:
- Ikkuna- ja parvekeoviurakka
- Ilmanvaihdon nuohous ja säätö
- Taloyhtiö liitetty BLC:n valokuituverkkoon
- Palovaroittimet verkkovirrassa uusittu
2020:
- Puisteluparvekkeet korjattu
- Hankittu pyykinpesukone ja rahastin
2018:
- Betonielementtien saumaus
- Autotallin ovien maalaus
2017: Lukituksen uusiminen (Abloy Sento)
2014:
- Kattoremontti; katon rakenne muutettu pulpettikatoksi, asennettu aluskate ja konesaumattu peltikate
- Räystäsrakenne uusittu ja asennettu uusi räystäskouru sekä syöksytorvet, mitkä varustettu sulanapitokaapelilla
- Asennettu uudet seinätikkaat sekä katolle huoltosilta ja lumiesteet
- Ullakkotilaan rakennettu palokatkoseinä, ullakkotila varustettu valoilla
- Yläpohjan lämmöneristeeksi asennettu puhallusvilla'
- Nousutikkaisiin asennettu turvakisko sekä hankittu valjaat ja nousuvaunu
2011: Lasten pihakeinu ja hiekkalaatikko rakennettu
2010:
- Käyttövesiputket uusittu
- Huoneistokohtaiset vesimittarit asennettu
- Pohjaviemäri uusittu
- Muut viemärilinjat korjattu pinnoittamalla
- Lämmitysjärjestelmä puhdistettu ja perussäädetty
- Ilmastointi koneellistettu (koneellinen poisto)
- Sähköpääkeskus uusittu
- Yhteisten tilojen ja porraskäytävien sähköistys uusittu
- Asuntojen sähköistys uusittu pääkeskukselta huoneistojen ryhmäkeskuksiin asti
- Saunaosasto uusittu kokonaisuudessaan
2005: Alapihan ulko-ovet uusittu
2004: Antenniverkko digikunnostettu
2002/2010: Porraskäytävät ja yhteiset tilat maalattu
2001: Etelänpuoleiset ikkunavälipellit ja vesipenkkipellit uusittu
2000: Yläpihan ulko-ovet uusittu
1995: Julkisivuremontti
2023: Julkisivumaalaus
2022:
- Ikkuna- ja parvekeoviurakka
- Ilmanvaihdon nuohous ja säätö
- Taloyhtiö liitetty BLC:n valokuituverkkoon
- Palovaroittimet verkkovirrassa uusittu
2020:
- Puisteluparvekkeet korjattu
- Hankittu pyykinpesukone ja rahastin
2018:
- Betonielementtien saumaus
- Autotallin ovien maalaus
2017: Lukituksen uusiminen (Abloy Sento)
2014:
- Kattoremontti; katon rakenne muutettu pulpettikatoksi, asennettu aluskate ja konesaumattu peltikate
- Räystäsrakenne uusittu ja asennettu uusi räystäskouru sekä syöksytorvet, mitkä varustettu sulanapitokaapelilla
- Asennettu uudet seinätikkaat sekä katolle huoltosilta ja lumiesteet
- Ullakkotilaan rakennettu palokatkoseinä, ullakkotila varustettu valoilla
- Yläpohjan lämmöneristeeksi asennettu puhallusvilla'
- Nousutikkaisiin asennettu turvakisko sekä hankittu valjaat ja nousuvaunu
2011: Lasten pihakeinu ja hiekkalaatikko rakennettu
2010:
- Käyttövesiputket uusittu
- Huoneistokohtaiset vesimittarit asennettu
- Pohjaviemäri uusittu
- Muut viemärilinjat korjattu pinnoittamalla
- Lämmitysjärjestelmä puhdistettu ja perussäädetty
- Ilmastointi koneellistettu (koneellinen poisto)
- Sähköpääkeskus uusittu
- Yhteisten tilojen ja porraskäytävien sähköistys uusittu
- Asuntojen sähköistys uusittu pääkeskukselta huoneistojen ryhmäkeskuksiin asti
- Saunaosasto uusittu kokonaisuudessaan
2005: Alapihan ulko-ovet uusittu
2004: Antenniverkko digikunnostettu
2002/2010: Porraskäytävät ja yhteiset tilat maalattu
2001: Etelänpuoleiset ikkunavälipellit ja vesipenkkipellit uusittu
2000: Yläpihan ulko-ovet uusittu
1995: Julkisivuremontti
Piha: Asfalttipintojen uusiminen
Lämmitysjärjestelmä: Varautuminen KL-laitteiston uusimiseen
Lämmitysjärjestelmä: Varautuminen KL-laitteiston uusimiseen
Henri Immonen
Isännöinti Taloluotsi Oy
p. 044 7511709
henri@taloluotsi.fi
Isännöinti Taloluotsi Oy
p. 044 7511709
henri@taloluotsi.fi
Huoltoyhtiö
D2018
3 903,00 m²
Vuokratontti
15.05.2026
Savonlinnan kaupunki
Asemakaava








