Kompakti kaksio loistavalla paikalla Savonlinnan ydinkeskustan tuntumassa Uimahallinkadulla
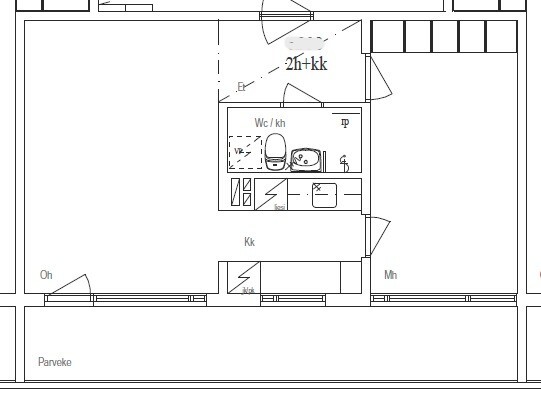
Tämä hissillisen rapun 44,50 m²:n kaksio on hyvä pohjaratkaisultaan ja siihen lisättynä koko huoneiston levyinen lasitettu parveke , josta avautuvat näkymät ilta-auringon suuntaan.
Asunto soveltuu hyvin tarvittaessa esimerkiksi kakkoskodiksi tai sijoituskohteeksi, sillä ammattikorkeakoulu sijaitsee aivan talon läheisyydessä.
Asunto on pääasiassa kokonaan remontoitu ja tässä onkin uudelle omistajalle mahdollisuus päästä huolettomasti muuttamaan uuteen kotiin ilman suurempia remonttihuolia niin asunnon kuin taloyhtiönkään osalta.
Asunto Oy Savonniemi on hyvin hoidettu yhtiö niin remonttien kuin taloudenkin osalta. Talossa on tehty merkittäviä peruskorjauksia viime vuosina. Mm. linjasaneeraus, ikkunaremontti, kattoremontti ja hissien modernisointi ovat jo takanapäin.
Yhteisiin tiloihin kuuluvat mm. saunat ja uima-altaat sekä huoneistokohtaiset häkkikomerot
Asunto vapautuu nopeastikin uudelle omistajalle! 
Kohdetta myy
57130 SAVONLINNAantti.naukkarinen@hannunaukkarinen.fi+358 440 576 914
Esittely
Perustiedot
Uimahallinkatu 6
57100 Savonlinna
Hinta ja kustannukset
Laskettu velattomasta myyntihinnasta.
Hoitovastike 197,80 € / kk
Lisätiedot
Iso, koko huoneiston levyinen parveke, josta näkymä myös järvelle.
Lämmönjakotapa: vesikiertoinen patterilämmitys
Asunnon tilat ja materiaalit
Pääasiallinen rakennusmateriaali on teräsbetoni.
Varusteet: jääkaappipakastin, astianpesukone, sähköliesi, liesituuletin
Seinien pintamateriaali: maalattu
Lattian pintamateriaali: laminaatti
Lattian pintamateriaali: laminaatti
Lattian pintamateriaali: laminaatti
Makuuhuoneiden määrä: 1
Seinien pintamateriaali: kaakeli
Lattian pintamateriaali: laatta
Katon pintamateriaali: Huopakate
Taloyhtiö
2008: Autopaikkojen laajennus talo 4
2010: Saunatilojen pintakäsittely
2011: Pihasuunnitelma
2013: Autolämmityskoteloiden uusiminen
2013: Ovipuhelinremontti
2014: Vesijohto- ja viemäriremontin suunnittelu
2015: Valokuitu (huoneistokohtainen liittyminen)
2015: Saunatilat (sauna, pesuhuoneet ja uima-allas)
2015: Linjasaneeraus ja samalla saunaosastot remontoitu
2016: Kattoremontti
2018: Ikkuna- ja ilmanvaihtoremontti
2019: Pihan asfaltointi
2020: Uusittu sisäänkäynnin ulko-ovet
2020: Autotallien ovien uusiminen
2024: Hissit uusittu 6 A, 6 D, 4 A ja 4 D
Savonlinnan Isännöintikeskus Oy
p. 040-5966129
marko.seppanen@slnisannointikeskus.fi
Savonniemen asemakaavamuutos on vireillä. Voit tutustua kaavoitukseen: https://www.savonlinna.fi/asukas/kaavoitus/















